Navigation
Geos Neighborhood
Naturally Powered. People Connected.
Home
Primary Menu
Home
Tour
Our Story
The Geos Story
Ideas to Reality
Press and Awards
Geos Community
Geos Community
Community Plan
Pocket Neighborhoods
Co-housing Community
Pathways, Parks, and Community Places
Surrounding Amenities
Geos Design Book
Geos Sustainability
Passive House Concepts
Design Principles
Building Envelope
Mechanical Systems
Water and Landscape
Geos Homes
Location
Contact
The Geos Team
Return to Content
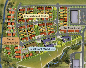
Geos Neighborhood Areas